Quadrilocale in vendita

San Salvo, Strada circonvallazione
€ 139.000
4 locali 4 locali
104 Mq 104 Mq
2 bagni 2 bagni

Quadrilocale in vendita

San Salvo, Strada circonvallazione

Descrizione annuncio

Tecnocasa San Salvo propone in vendita:

Appartamento con box in via Nuova circonvallazione

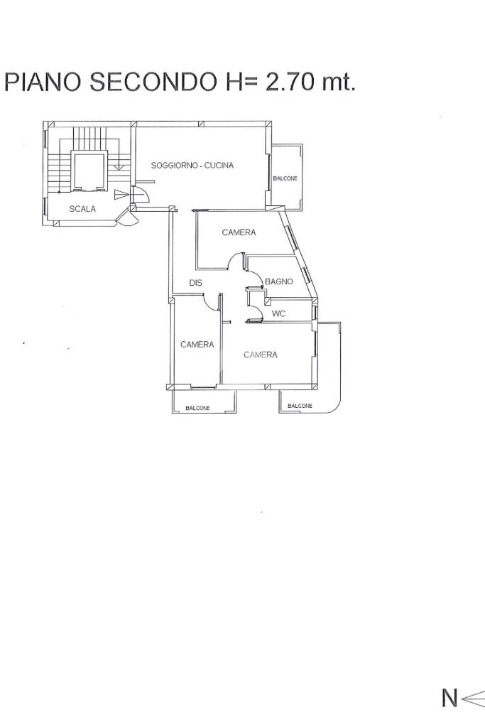
Nel comune di San Salvo, proponiamo in vendita un appartamento di 104 mq situato al piano medio di un edificio residenziale dotato di ascensore.

L'immobile,offre spazi ben distribuiti e funzionali. All'interno, troverete quattro locali, tra cui tre camere da letto accoglienti, di cui due con affaccio su balcone. La zona giorno con cucina openspace si apre su balcone, perfetto per momenti di relax all'aperto.

La proprietà dispone di due bagni, garantendo comfort e praticità per tutta la famiglia.

L'appartamento è dotato di aria condizionata, assicurando un ambiente piacevole in ogni stagione.

Completa l'offerta un box auto, che aggiunge comodità e sicurezza.

Questa soluzione abitativa rappresenta un'opportunità interessante per chi cerca una residenza spaziosa e ben collegata nel cuore di San Salvo.

Se per acquistare il tuo nuovo immobile devi vendere la tua attuale proprietà, contattaci per una consulenza gratuita e senza impegno, con valutazione professionale.

Non perdere questa opportunità!Chiamaci al 0873.562888 per fissare un appuntamento senza impegno.

Seguici anche sui nostri canali social: siamo presenti su Facebook, Instagram e Youtube con il nome @Tecnocasasansalvo

Mostra tutto

Nelle vicinanze

Scuole Scuole
IPSIA
410 m
Mattioli
460 m
Scuola Primaria Via De Vito
830 m
Scuola media "Salvo D'Acquisto"
1,0 Km
Farmacia Farmacia
Farmacia Farmamentis
500 m
Di Nardo
540 m
Farmacia di Croce
930 m
Grifone
930 m
Farmacia Leone Magno
1,6 Km
Supermercati Supermercati
Conad City
440 m
Tedi
510 m
MD
530 m
Acqua e Sapone
570 m
EuroSpin
600 m
Bar Bar
Tiffany
400 m
Parimà
450 m
Nonna Angiolina
570 m
Molière Book bar
570 m
Bar
910 m
Ristoranti Ristoranti
Con Sapore
640 m
Ristoranti
770 m
Tutto Gusto
810 m
L'Ottava Meraviglia
860 m
Lo Sfizio
930 m
Mostra tutto

Caratteristiche

Rif.:
61140926
Piano:
2 di 3 con ascensore (Piano medio)
Box:
1
Balconi:
2
Camere da letto:
3
Arredamento:
Assente
Mostra tutto
Prezzo Prezzo
€ 139.000
Rata mutuo Rata mutuo
€ 660 / mese
Spese annue Spese annue
€ 400
Proponi il tuo prezzoProponi il tuo prezzo

Classe Energetica

F
F
F
F
F
F
F
F
F
EP globale non rinnovabile:
88.00 kW h/m² anno
EP globale rinnovabile:
99.00 kW h/m² anno
EP invernale del fabbricato:
EP estiva del fabbricato:
Anno di costruzione:
2000
Riscaldamento:
Autonomo
Tipo impianto:
A radiatori
Tipo alimentazione:
Metano

Ti interessa visionare l'immobile?

Fissa un appuntamento  Fissa un appuntamento

Richiedi informazioni

Clicca su Leggi per aprire l'informativa
* Questi campi sono obbligatori

Calcola il tuo mutuo

Semplice e senza impegno
Anticipo

( % )
Mutuo

( % )

pochi semplici passi

inserisci i tuoi dati
Questionario completato
Grazie per aver richiesto un appuntamento senza impegno con un nostro Consulente del Credito e Assicurativo.

Hai inserito correttamente tutti i dati necessari e a breve riceverai una e-mail con un link da convalidare per inviare i tuoi dati.
Affiliato
Abruzzo Group Srl
Via Istonia, 28/f 66050 San Salvo (CH)

Il nostro staff


  • Antonio Ciociola
    Responsabile

  • Antonio Pio Colucci
    Collaboratore

  • Simona Antonia Di Lena
    Collaboratrice

  • Samuela Lucarelli
    Collaboratrice

  • Tatiana Suriani
    Collaboratrice

  • Francesca Tritella
    Coordinatrice
Via Istonia, 28/f 66050 San Salvo (CH)
Zona: San Salvo
Mostra su mappa
Affiliato
Abruzzo Group Srl
Via Istonia, 28/f 66050 San Salvo (CH)

2026 Tecnocasa Franchising S.p.A. - P. IVA 08365160152 - Via Monte Bianco 60/A 20089 Rozzano (MI). Ogni agenzia ha un proprio titolare ed è autonoma. Privacy policy | Policy utilizzo | Cookie policy