Quadrilocale in vendita

San Salvo, Via Michele Arcangelo
€ 129.000
4 locali 4 locali
110 Mq 110 Mq
2 bagni 2 bagni

Quadrilocale in vendita

San Salvo, Via Michele Arcangelo

Descrizione annuncio

Tecnocasa San Salvo propone in vendita:

Appartamento posto al secondo piano con ampio box

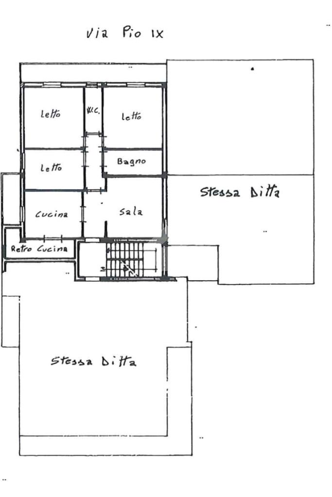
In Via San Michele Arcangelo proponiamo in vendita un elegante appartamento di 110 mq, situato al secondo piano, in una palazzina senza ascensore, di un contesto residenziale tranquillo e ben servito.

L’immobile si distingue per la disposizione funzionale degli spazi, pensata per garantire comfort e praticità. L’ampio soggiorno con cucina openspace e isola centrale, impreziosito da un camino, crea un ambiente accogliente e raffinato, con affaccio diretto su balcone.

La zona notte offre due camere matrimoniali, una cameretta ideale anche come studio e due bagni, assicurando la massima comodità per tutta la famiglia. La presenza di due balconi consente di godere di spazi esterni privati, perfetti per momenti di relax.

Completa la proprietà un box auto, soluzione pratica e sicura per il parcheggio.

La posizione strategica, in un quartiere a misura d’uomo, rende questa proposta ideale per chi desidera vivere in un contesto residenziale sereno, senza rinunciare alla vicinanza ai principali servizi.

Se per acquistare il tuo nuovo immobile devi vendere la tua attuale proprietà, contattaci per una consulenza gratuita e senza impegno, con valutazione professionale.

Non perdere questa opportunità!Chiamaci al 0873.562888 per fissare un appuntamento senza impegno.

Seguici anche sui nostri canali social: siamo presenti su Facebook, Instagram e Youtube con il nome @Tecnocasasansalvo

Mostra tutto

Nelle vicinanze

Trasporto pubblico Trasporto pubblico
Vasto S.Salvo
Vasto S.Salvo
2,7 Km
Stazione di Vasto-San Salvo
Stazione di Vasto-San Salvo
2,7 Km
Ricariche auto elettriche Ricariche auto elettriche
Concessionario Nissan Pasquarelli Auto
2,4 Km
Scuole Scuole
Scuola media "Salvo D'Acquisto"
960 m
Scuola Primaria Via De Vito
1,3 Km
Mattioli
1,8 Km
IPSIA
1,8 Km
Farmacia Farmacia
Farmacia Leone Magno
240 m
Grifone
910 m
Farmacia di Croce
1,3 Km
Di Nardo
1,6 Km
Farmacia Farmamentis
1,9 Km
Supermercati Supermercati
Pam
380 m
Gia.da
490 m
Acqua e Sapone
880 m
Conad
1,3 Km
Supermercati
1,5 Km
Bar Bar
Bar
270 m
Casina delle Rose
1,1 Km
Molière Book bar
1,4 Km
Divinus
1,6 Km
Nonna Angiolina
1,6 Km
Ristoranti Ristoranti
Pepe Bianco
520 m
Il Salice
710 m
L'Ottava Meraviglia
1,0 Km
Lo Sfizio
1,1 Km
Tutto Gusto
1,1 Km
Mostra tutto

Caratteristiche

Rif.:
61149720
Piano:
2 di 3 (Piano ammezzato)
Box:
1
Balconi:
2
Camere da letto:
3
Arredamento:
Assente
Mostra tutto
Prezzo Prezzo
€ 129.000
Rata mutuo Rata mutuo
€ 613 / mese
Spese annue Spese annue
€ 0
Proponi il tuo prezzoProponi il tuo prezzo

Classe Energetica

F
F
F
F
F
F
F
F
F
EP globale non rinnovabile:
108.35 kW h/m² anno
EP globale rinnovabile:
0.82 kW h/m² anno
EP invernale del fabbricato:
EP estiva del fabbricato:
Anno di costruzione:
1980
Riscaldamento:
Autonomo
Tipo impianto:
A radiatori
Tipo alimentazione:
Metano

Ti interessa visionare l'immobile?

Fissa un appuntamento  Fissa un appuntamento

Richiedi informazioni

Clicca su Leggi per aprire l'informativa
* Questi campi sono obbligatori

Calcola il tuo mutuo

Semplice e senza impegno
Anticipo

( % )
Mutuo

( % )

pochi semplici passi

inserisci i tuoi dati
Questionario completato
Grazie per aver richiesto un appuntamento senza impegno con un nostro Consulente del Credito e Assicurativo.

Hai inserito correttamente tutti i dati necessari e a breve riceverai una e-mail con un link da convalidare per inviare i tuoi dati.
Affiliato
Abruzzo Group Srl
Via Istonia, 28/f 66050 San Salvo (CH)

Il nostro staff


  • Antonio Ciociola
    Responsabile

  • Antonio Pio Colucci
    Collaboratore

  • Simona Antonia Di Lena
    Collaboratrice

  • Samuela Lucarelli
    Collaboratrice

  • Tatiana Suriani
    Collaboratrice

  • Francesca Tritella
    Coordinatrice
Via Istonia, 28/f 66050 San Salvo (CH)
Zona: San Salvo
Mostra su mappa
Affiliato
Abruzzo Group Srl
Via Istonia, 28/f 66050 San Salvo (CH)

2026 Tecnocasa Franchising S.p.A. - P. IVA 08365160152 - Via Monte Bianco 60/A 20089 Rozzano (MI). Ogni agenzia ha un proprio titolare ed è autonoma. Privacy policy | Policy utilizzo | Cookie policy